Moderne 3-Zimmerwohnung mit Balkon, Kellerraum und 2 Tiefgaragenplätzen
Objektart
Adresse
Objektdaten
Informationen
Ausstattung
Details
Hauskonzept:
Ein sehr durchdachtes, gelungenes und trendiges Hauskonzept mit moderner Eleganz. Bei der gesamten Hausausstattung wurden nur qualitative, wertbeständige und sorgfältig ausgesuchte Materialien verwendet.
Diese trendige Obergeschosswohnung verfügt über eine gehobene, moderne Ausstattung und eine praktisch geschnittene Raumaufteilung. Das offene Ess- und Wohnzimmer mit integrierter Küche (inkl. Einbauküche) entspricht dem heutigen Zeitgeist und ist der Mittelpunkt der Wohnung. Ebenso das moderne Duschbad mit bodengleicher, begehbarer Dusche wird dem derzeitigen Trend gerecht.
Die Wohnung ist mit modernen, 3-fach isolierverglasten Kunststofffenstern, inkl. elektr. Rollläden sowie mit einer Fußbodenheizung ausgestattet. Für die Bodenbeläge wurden zeitlose Fliesen- und Laminatböden ausgesucht. Abgesehen von der Wohnfläche kommen auch die Abstellmöglichkeiten und Hauswirtschafträume nicht zu kurz. Der zu dieser Wohnung gehörende Kellerraum ist ca. 6,70 m² groß.
Ein Aufzug vom Untergeschoss bis ins Dachgeschoss bietet einen weiteren täglichen Komfort.
Im Untergeschoss stehen den Bewohnern Tiefgaragenplätze und Kellerräume zur Verfügung.
Das Haus wird mit einer modernen Gas-Zentralheizung beheizt. Die Warmwasseraufbereitung erfolgt ebenfalls mittels dieser Heizzentrale über Warmwasserspeicher. Die zwei Tiefgaragenplätze runden dieses tolle Mietangebot ab.
Auf Mietereigenschaften, wie Sauberkeit und gegenseitigen Respekt wird großer Wert gelegt.
Haustiere sind nicht erlaubt!
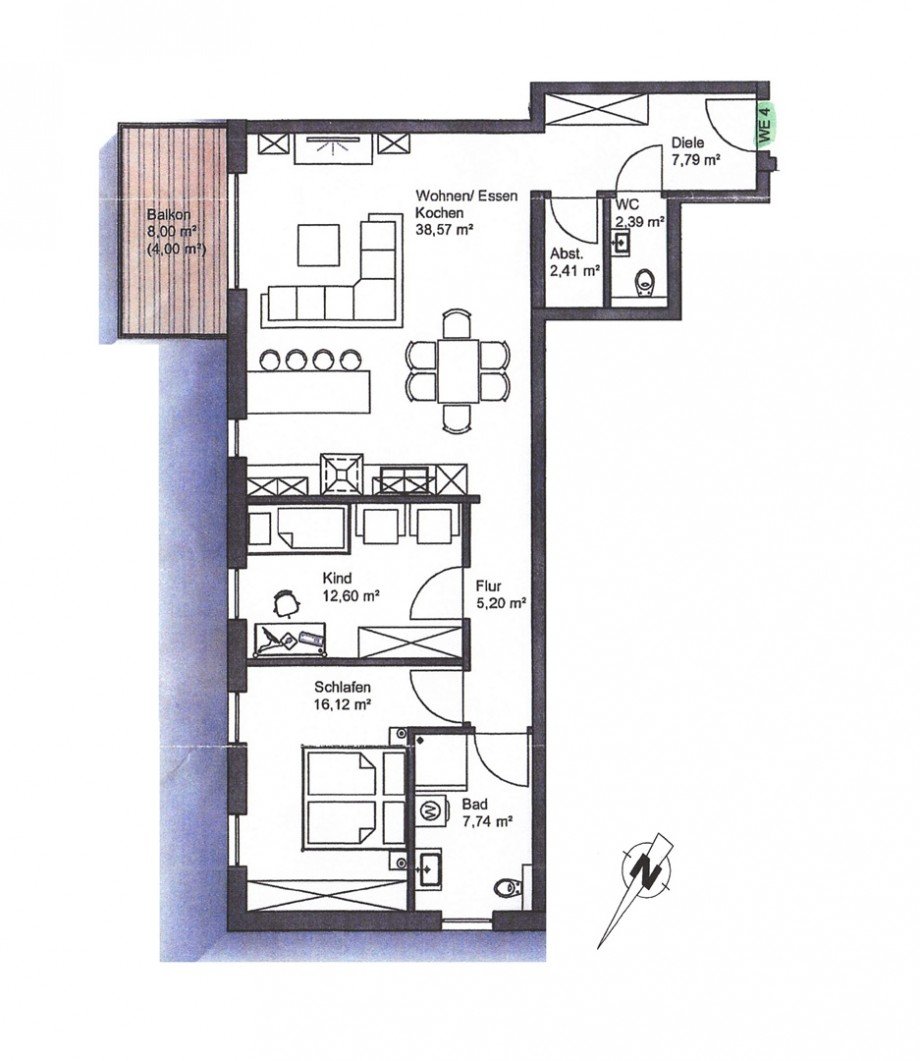
Aufteilung der Wohnung-Nr. 04: Wohnfläche ca. 96,86 m²:
Eingang/Diele, Wohn- und Esszimmer mit integrierter Küche und Balkon, 2 Schlafzimmer, Duschbad, Gäste-WC, und Abstellraum.
Die Highlights im Überblick:
* Zentrale, komfortable Wohnlage in Wörrstadt,
* Mit Aufzug von der Tiefgarage bis ins Dachgeschoss,
* Mit Balkon und Kellerraum,
* Zeitloses Design, schöne, große Fensterelemente,
* Alle Fenster sind aus Kunststoff mit 3-facher-Isolierverglasung,
* Alle Fenster sind mit elektr. Rollläden ausgestattet,
* Fliesen- und Laminatböden,
* Hochwertig ausgestattete Bad- u. Sanitäreinrichtung,
* Abstellraum mit Waschmaschinen- und Trockneranschluss,
* Stufenlose, begehbare Dusche mit Glasduschabtrennung, Waschbecken und WC,
* Gäste-WC,
* 2 Tiefgaragen-Stellplätze.
Nebenkosten wie Strom, Telefon, Internet, etc. zahlen Sie direkt an den jeweiligen Anbieter.
Bevorzugte Wohnlage im Nord-Östlichen Stadtteil von Wörrstadt. Die Stadt Wörrstadt, mit rund 8000 Einwohnern, liegt mitten in der bekannten Wein- und Kulturlandschaft Rheinhessen, in der Nähe der Städte Alzey, Mainz sowie dem Rhein-Main-Gebiet. Außerdem bietet Wörrstadt eine hervorragende Infrastruktur mit mehreren Einkaufsmöglichkeiten für den täglichen Bedarf, Bäckereien, Restaurants, Cafés, Ärzten und Apotheken. Des Weiteren sind in Wörrstadt mehrere Kindergärten sowie eine Grundschule, Realschule und eine integrierte Gesamtschule vorhanden. Ein Freibad, Tennisplätze und Sporthallen sowie mehrere Fitnesscenter bieten viele Möglichkeiten zur sportlichen Betätigung. Nur in wenigen Fußminuten erreicht man den Bahnhof mit Bus- und Bahnverbindungen. Die Bahnverbindung Alzey-Mainz, -Bingen, Kirchheimbolanden und Worms geht meist im 30-min Takt. Eine Exzellente Autobahnanbindung über A61 nach Mannheim/ Ludwigshafen/Koblenz und A63 nach Mainz/Kaiserslautern ist ebenso gegeben.
Ansprechpartner
Telefax: +49 3212 1391399
Mobil: +49 175 / 59 75 328
mail@juhna-immobilien.de
Energieausweis (Bedarfsausweis)
19,70 kWh / (m²*a) Endenergiebedarf
19,70 kWh / (m²*a) Endenergiebedarf
19,70 kWh / (m²*a) Endenergiebedarf
Weitere Informationen
| Befeuerung | Gas |
| Energieverbrauch für Warmwasser | enthalten |
| Energieausweis Baujahr | 2021 |
| Heizung | Zentralheizung |
Ich bin damit einverstanden, dass mir Karten von Google angezeigt werden. Es gelten die Datenschutzbedingungen von Google (https://policies.google.com/privacy).
Ich bin einverstanden