Objektart
Adresse
Objektdaten
Informationen
Ausstattung
Details
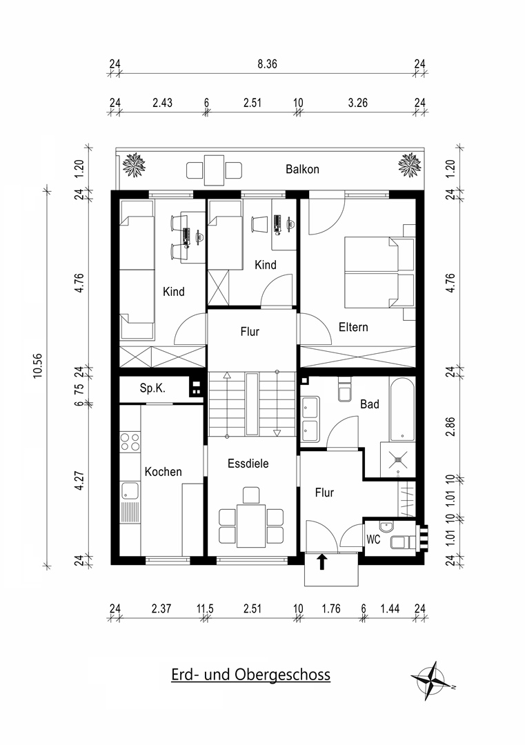
Ein Raumwunder mit Kompaktheitscharakter!
Dieses Reihenhaus überzeugt durch seine besondere Split-Level-Bauweise, die dem Grundriss eine interessante und offene Struktur verleiht. Die Reihenhausanlage wurde 1970/1971 der Hanglage optimal angepasst, bzw. in konventioneller Massivbauweise errichtet. Die versetzten Ebenen schaffen ein angenehmes Wohngefühl mit klar getrennten Bereichen und kurzen Wegen. Somit verteilen sich die Wohnfläche von ca. 157 m², bzw. die Wohnräume auf mehreren Wohnebenen und ermöglichen eine klare Trennung zwischen Wohnen, Arbeiten und Rückzug.
Modernisierung/Renovierungsstau:
Bis auf die Erneuerung der Heizungsanlage und die übliche Instandhaltung wurden in den letzten Jahren keine großflächigen Modernisierungen vorgenommen. Der Zustand der baulichen Anlagen ist solide und gepflegt, auch wenn gleich die Installationen und Einbauten nicht mehr zeitgemäß sind. Um das Gebäude technisch und energetisch wieder in einem aktuellen, bzw. zeitgemäßen Zustand zu versetzen sind Sanierungsmaßnahmen notwendig.
Außenbereich & Garage:
Ein weiteres Highlight ist der kleine sonnige Garten mit Südwest-Ausrichtung. Eine Einzelgarage direkt vor der Reihenhausanlage rundet das Angebot ab.
Fazit
Dieses charmante Kleinod in begehrter Lage am „Doktorberg“ überzeugt als wahres Raumwunder mit Wohnkomfort, Flexibilität und vielfältigen Gestaltungsmöglichkeiten.
Mit handwerklichem Geschick und kreativen Ideen bietet sich Ihnen hier die attraktive Gelegenheit, das Haus ganz nach Ihren eigenen Vorstellungen und Ihrem persönlichen Geschmack zu gestalten.
Die durchdachte, kreative Raumaufteilung sowie die wunderschöne Aussicht verleihen dieser Immobilie ihren besonderen Charakter.
Überzeugen Sie sich selbst bei einer persönlichen Besichtigung.
Die Highlights im Überblick:
* Begehrte Wohnlage am „Doktorberg“, Alzey-West,
* Hervorragende Verkehrsanbindung,
* Real getrennte Grundstücksparzellen,
* Besondere Split-Level-Bauweise,
* Durchgehend wertbeständige Massivbauweise,
* Durchdachter und praktischer Grundriss,
* 9 Zimmer, Küche, Vollbad, WC und Gäste-WC,
* Die Kombination „Arbeiten und Wohnen unter einem Dach“ umsetzbar,
* Neue Heizungsanlage (Weishaupt), erneuert 2018,
* Neuer Wärmetauscher, erneuert 2026,
* Doppelverglaste Holzfenster (vom Baujahr) mit Fensterrollläden,
* Teilweise Teppich-, PVC- und Fliesenböden,
* Fernseh- und Telefonanschluss,
* Terrasse, Garten und Balkon mit Süd-Westausrichtung,
* Eingewachsener und pflegeleicht angelegter Garten,
* Außenwasseranschluss,
* Das Haus ist bereits geräumt, kurzfristige Übernahme möglich,
* Einzelgarage vor der Reihenhaussiedlung,
* Der Kaufpreis der Immobilie versteht sich im Ist-Zustand.
Diese Adresse vereint exklusive Wohnlage, Ruhe, Natur und Stadtnähe – ideal für alle, die komfortables Wohnen in Alzey suchen.
Das Reihenhaus liegt am oberen Rand des „Doktorbergs“, einer der begehrtesten Wohnlagen der Stadt. Die ruhige, grüne Umgebung und die Höhenlage bieten einen herrlichen Ausblick über die umliegenden Weinberge, ein echtes Highlight für Lebensqualität und Wohnkomfort.
Dank der Nähe zum Stadtzentrum sind alle wichtigen Einrichtungen schnell auch zu Fuß erreichbar. Alzey bietet eine hervorragende Infrastruktur mit Einkaufsmöglichkeiten, Fachgeschäften, Supermärkten, Banken, Ärzten, Kulturangeboten sowie Freizeit- und Sportanlagen, inklusive zweier Krankenhäuser.
Die Stadt überzeugt zudem mit einem vielfältigen Bildungsangebot: Kindergärten mit Ganztagsbetreuung, Grundschulen, eine Realschule plus, eine Berufsoberschule sowie drei Gymnasien.
Für Mobilität sorgt die hervorragende Anbindung an öffentliche Verkehrsmittel:
Der Hauptbahnhof und zentraler Busbahnhof sind in wenigen Gehminuten erreichbar.
Bahnverbindungen nach Mainz, Bingen, Kirchheimbolanden und Worms im 30-Minuten-Takt sowie ein gut ausgebautes städtisches Busnetz.
Die exzellente Autobahnanbindung über A61 nach Mannheim/ Ludwigshafen/Koblenz und A63 nach Mainz/Kaiserslautern unterstreicht die Vorteile der Wohnlage.
Alle Angaben in diesem Exposé wurden mit größter Sorgfalt zusammengestellt und basieren ausschließlich auf den Informationen und Unterlagen, die uns von unserem Auftraggeber zur Verfügung gestellt wurden. Für die Vollständigkeit, Richtigkeit und Aktualität dieser Angaben übernehmen wir keine Gewähr.
Es handelt sich hierbei um eine objektbeschreibende Darstellung, nicht um zugesicherte Eigenschaften im rechtlichen Sinne. Änderungen, Irrtümer sowie Zwischenverkauf oder Zwischenvermietung bleiben ausdrücklich vorbehalten. Schadensersatzansprüche gegen uns sind, ausgenommen bei vorsätzlichem oder grob fahrlässigem Verhalten, ausgeschlossen. Eine Weitergabe dieser Informationen an Dritte ist nur mit unserer ausdrücklichen, schriftlichen Zustimmung gestattet.
Besichtigungen sind ausschließlich nach vorheriger Terminvereinbarung mit uns möglich. Für Fragen stehen wir Ihnen selbstverständlich auch vorab gerne zur Verfügung. Bitte nutzen Sie hierfür die Funktion „Anbieter kontaktieren“ auf dieser Seite, wir melden uns umgehend bei Ihnen zurück. Sollten Sie innerhalb kurzer Zeit keine Rückmeldung erhalten, prüfen Sie bitte auch Ihren Spam-Ordner.
Ansprechpartner
Telefax: +49 3212 1391399
Mobil: +49 175 / 59 75 328
mail@juhna-immobilien.de
Ich bin damit einverstanden, dass mir Karten von Google angezeigt werden. Es gelten die Datenschutzbedingungen von Google (https://policies.google.com/privacy).
Ich bin einverstanden